Client:
Loudoun County Public Schools
Details:
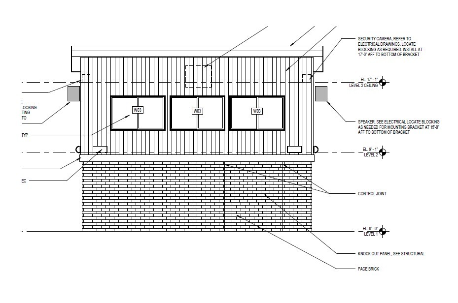
- General Contractor for two press boxes on school property
- Site work (E&S, excavation and dry utilities)
- Ground up construction to include concrete footings, masonry and wood frame walls
- Electrical, mechanical and security/access control trade work
- Interior Finishes (drywall, flooring)
- Exterior finishes (metal roof and siding, brick façade)


